Grove Close, Kingston Upon Thames, KT1
2
1
1
£415,000
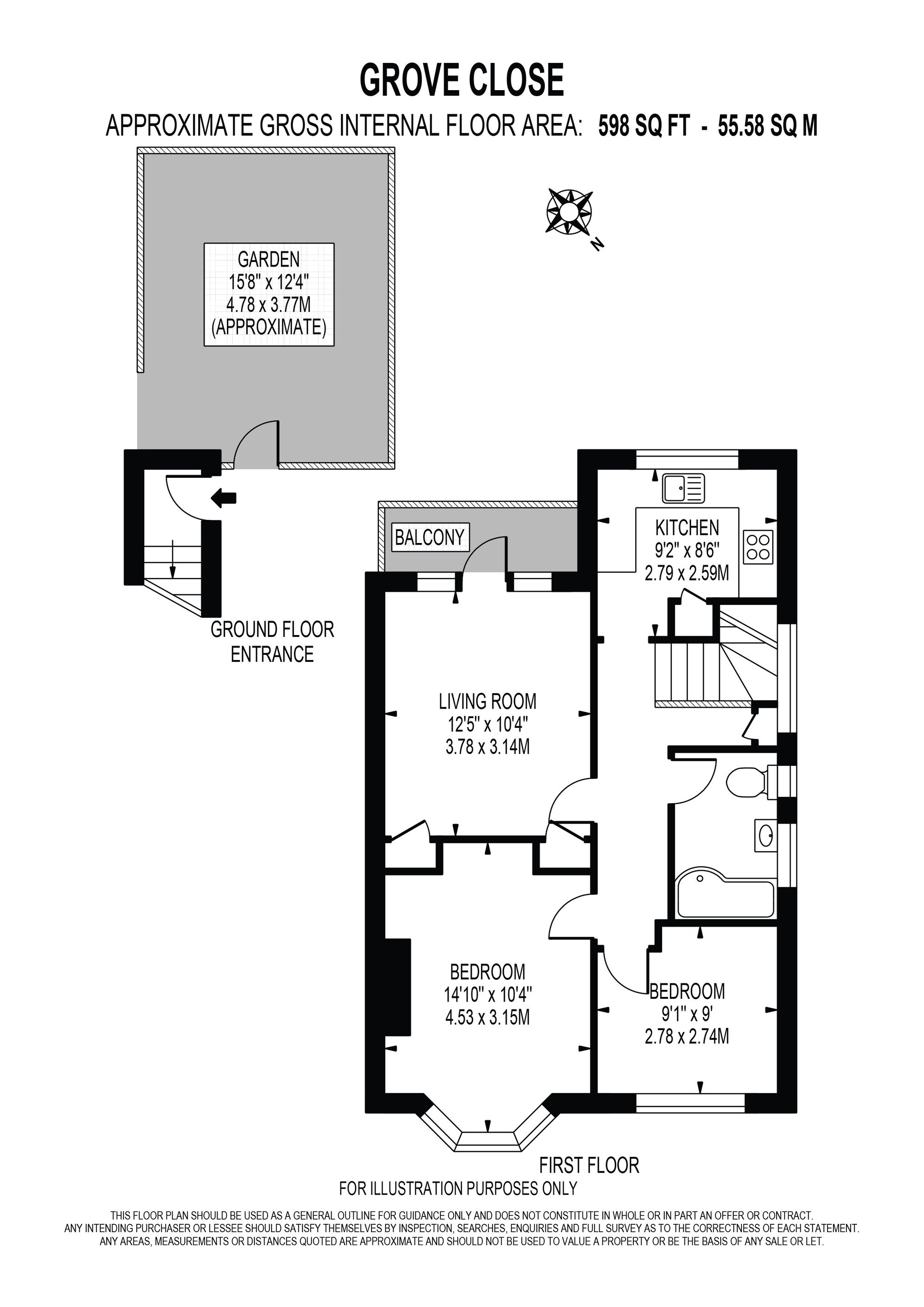
PhotosFloor PlanShare
Key highlights
- First floor maisonette
- A short walk to Surbiton Town Centre and Mainline Station
- Private garden
- Within easy reach of Kingston Town Centre
- Balcony
- No chain
Key details
Tenure: Leasehold
Size: 592 ft²
Council Tax Band: C
EPC Rating: D
Utilities
Electric: National Grid
Water: Mains water supply
Heating: Gas
Broadband: FTTP (fibre to the premises)
Sewerage: Mains supply
Risks
Flooded in the last 5 years: No
Flood defences: No
Sources of flood: Ask agent
Rights & restrictions
Private rights of way: No
Public rights of way: Ask agent
Listed property: No
Restrictions: No
Property description
A fantastic first floor maisonette with a private garden and balcony. Located just a short walk from Surbiton Town Centre and Mainline Station, the property provides easy access to local shops, restaurants, and transport links. Kingston Town Centre is equidistant, providing additional shopping and leisure options. The spacious interior features a bright living area that opens onto a private balcony, ideal for relaxing. The kitchen is well-appointed, and the bedrooms are generously sized, offering ample storage. The property is offered with no onward chain.
Interested in viewing this property?
Make an offerHumphrey & Brand Sales020 8399 1888sales@humphreyandbrand.co.uk
Explore the neighbourhood around Grove Close, Kingston Upon Thames, KT1
Calculators
Estimated Stamp Duty (£)
This is an estimate for England & Northern Ireland based on current SDLT rules.
£0
Monthly repayment
£0
per month
The monthly repayments provided are estimates and should be used as a guide only.
Estimated Annual Rent (£)
£0
/ year
Estimated Rental Yield (%)
0.00%
Grove Close, Kingston Upon Thames, KT1
Arrange a viewing
Call us today on 020 8399 1888 or use the form below to request a viewing of this property.
PhotosFloor Plan









