Hook Road, Surbiton, KT6
Key highlights
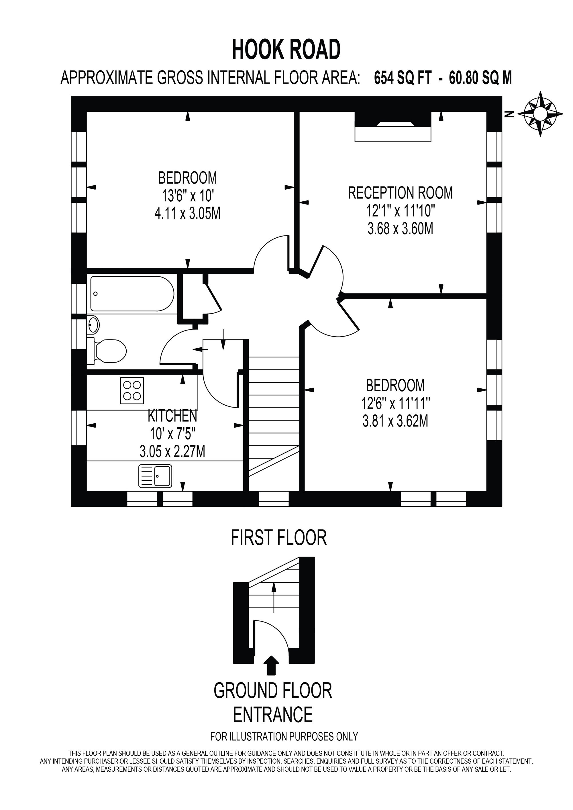
- Two bedroom first floor maisonette
- A stones throw from local amenities
- Within easy reach of Surbiton Station and town centre
- Private garden
- Good transport links
- Private entrance
Key details
Utilities
Risks
Rights & restrictions
Property description
This well-presented two-bedroom first-floor maisonette offers spacious, comfortable living in a highly convenient location. It benefits from a private entrance, ample storage, and its own private garden.
The property features two good-sized double bedrooms, a bright and spacious reception room, and a well-proportioned layout that is ideal for both relaxing and entertaining.
Externally, there is a private garden with a shed, providing useful additional storage.
Located just a stone’s throw from local amenities, the home is also within easy reach of Surbiton Station and the town centre, offering excellent transport links along with a wide range of shops, cafés, and services.
This is an ideal opportunity for anyone seeking a generously sized, well-connected maisonette
Interested in viewing this property?
Make an offerExplore the neighbourhood around Hook Road, Surbiton, KT6
Calculators
Arrange a viewing








